マンション・アパート建築設計の流れ

1.現地調査・市場調査

マンション・アパートを計画したい土地の資料をお持ちください。 足りないものがあればこちらで現地に出向き法務局や役所にて必要な書類や法規、条例等を調査いたします。 また、計画エリア内の市場データ、近隣施設状況の調査を行ない事業収支計画に役立てます。

現地調査・市場調査

2.ボリュームチェック、事業収支計画

現地調査にて調査した情報をもとに、その敷地にどのようなサイズの住戸が何階建てでどのくらい入るかを検討します。 どのような駐車計画をするかも同時に検討します。 容積率や建ぺい率、日影図や天空率を計算しマンションの収支計画が出来るように計画致します。 また、工事費の概算と近隣データから家賃等の相場をもとに事業収支計画を行います。 これによりその土地でのマンション事業がうまくいくかどうかの判断を行ないます。

ボリュームチェック、事業収支計画

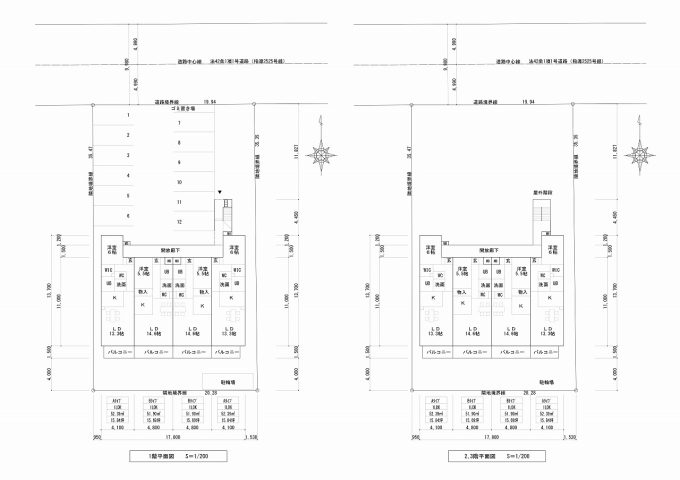
3.ご提案

ボリュームチェックで出した内容に外観や住戸の間取りやエントランスホールなどがわかる図面とBIMモデルでご提案させていただきます。 3Dで様々な角度からプランを検討することが可能です。 またBIMモデルはPC、iPhone、iPad、Androidスマートフォンで見ることが可能です。 クラウドを利用して3Dモデルを共有することも可能です。

3Dモデルの共有方法

4.設計監理契約

設計監理契約

設計料に付きましては、建築士事務所協会「建築士事務の業務報酬算定指針」による設計料算出方法を採用しています。 これは建物の床面積・用途に応じて設計料を算出するものですので、規模の大小に関わらずお気軽にご相談下さい。 設計期間については、お施主様の大切な建物を間違いなく作ることが出来るよう、余裕を持った設計期間を提示させて頂くようにしています。

5.基本設計

これまでの打ち合わせでまとめた設計内容をBIMモデルにまとめ、構造・設備の初期提案を行い、建物の外壁や内部の仕上げ、外構の材料などのカタログやサンプルを揃えお施主様と検討しながら決定していきます。 お施主様の予算に応じて建築費用の概算見積もりを作成いたします。 次の実施設計をスムーズに進めるため、変更によって実施設計がやり直しになることが無いように慎重に打ち合わせを進めます。

6.実施設計

基本設計で作成したBIMモデルをもとに実施設計BIMモデルの作成を開始します。 実施モデルは完成とほぼ同じですので完成前のプロモーション等にご利用いただくことも可能です。 3Dですので断面や平面をカットして見ることで入居希望者様に完成前に空間の構成をお伝えすることが容易に出来ます。

施工会社はこの実施設計BIMモデル及びモデルから出力された実施設計図面、仕様書をもとに見積もりをおこない、この図面に基づいて建物を作るので、施工会社にいままでの打ち合わせで決めた設計内容を伝えきるため、すべての情報が盛り込まれたデータを作成する必要があります。 BIMモデルに設計内容を忠実に盛り込んだ上そこから意匠図・構造図・設備図・各詳細図など細かい部分も詰めた図面を作成します。 その他にも天井、展開図、家具図、建具表、外構図など大量の図面を作成します。

7.見積もり・施工会社選定

成した実施設計図面をを元に施工会社へ見積り作成依頼を行います。
お施主様の指定する施工会社がない場合はこちらで数社に見積もりを依頼し見積金額・工事期間・内容の理解度などをもとにお施主様に業者選定のためのアドバイスをさせていただきます。
施工会社から提出された見積額がお施主様のご予算に合わない場合、設計変更や各種調整をおこないます。

見積もり・施工会社選定

施工会社が決定した後、お施主様と施工会社の間で工事契約を結んで頂きます。

8.確認申請

確認申請や許可申請、条例に合わせ各申請を行います。
許可申請や開発申請など特殊な申請が必要になる場合には、申請のための手数料や申請図書作成費などの別途費用が発生することがございますが、これらは役所調査を行い、法規関連のチェックを行った段階で予めご説明させて頂くように致します。

9.工事監理・竣工引渡

工事の進行の監理を行います。
実施設計図面の通りに工事しているか、工程に遅れが出ていないか、様々なことをチェックします。
建物が完成した後、実施設計図面通りに出来ているか、ミスは無いか検査を行います、その後お施主様に検査をして頂きます。
同時期に役所や消防、その他の行政検査を行います。
検査が全て終わりましたら、お引き渡しとなります。
関係業者とともにカギのお渡し、設備機器の取扱説明、保証期間、その他建物を使用するために必要なご説明をさせて頂きます。
建物の竣工写真の撮影も行わせていただきます。

10.アフターフォロー

建物が完成し、お引き渡し後1年を目処に経年検査を行い、不具合がないか確認をします。
この経年検査に関わらずお気づきの点などございましたら、竣工後いつでもお気軽にご相談下さい。

    お名前 (必須)

    お問い合わせの種類

    メールアドレス (必須)

    電話番号

    連絡可能な時間

    サイトを知ったきっかけ(複数選択可)

    メッセージ本文

    図面データ添付

    メッセージでは伝えきれない場合は『電話希望』とだけお書きください、お電話させていただきます。
    ※「フォーム送信ができない。」「3日営業日以内に返信がない。」等ございましたらお電話ください。
    ・東京オフィス 03-5284-7106 ・ 宇都宮オフィス 028-635-7226

    ※メールや電話よりも使い慣れた方が多いと言う事もあり、公式ラインアカウントを作成致しました。
    下記QRコード読み取り、もしくはボタンよりご登録頂けます。
    ラインでの配信は基本いたしませんので、お気軽にご登録ください。

    YA+A 公式ラインアカウント

    こちらにお電話をおかけください。

    03-5284-7106

    ×
    MENU