横松建築設計事務所のBIM活⽤事例を紹介します。
設計から施⼯、完成まで建築の失敗を防ぐ最新の3D設計⼿法を解説します。
横松建築設計事務所ではBIM(ビルディングインフォメーションモデリング)をメインの設計手法として採用しています。
BIMとは、Building Information Modeling(ビルディングインフォメーションモデリング)の略称です。建物をコンピューター上で3Dモデルとして設計し、コストや仕上げ、管理情報などの属性データを一元化した「建築物の情報データベース」を構築する仕組みです。
BIMは、建築の設計・施⼯から維持管理までの全⼯程で活⽤され、建築プロジェクトの可視化・効率化を可能にします。完成イメージの共有、建材の選定、コスト調整など、設計者・施主・施⼯者の意思疎通をスムーズにする、今や建築現場に⽋かせない⾰新的なワークフローです。
※BIMは建物を失敗しないために必須のツールです。こちらの動画でBIMの特徴をわかりやすく解説していますので、是非ご覧ください。
お客様が建物を建てるために⽀払う⾦額は決して安いものではありません。私たち設計事務所の仕事はお客様が⽀払う対価を出来る限りお客様の理想の建物に近づけることです。そのためには先ずお客様と設計事務所のイメージを間違うことなく共有することが必要です。このイメージ共有がうまくいかないまま建物の設計、施⼯を進めてしまうとお客様にとって思いもよらぬ建物が出来てしまうというトラブルの可能性があります。 横松建築設計事務所ではお客様とのイメージを⾼い精度で共有するためにBIMデータを⽤い様々な⾓度から提案、確認をさせていただいております。設計初期からBIMを⽤い視覚的に打ち合わせすることによってお客様にわかりやすく提案することに加え、提案に対してお客様からのご意⾒もいただきやすくなっています。BIMベースの打ち合わせによって双⽅の案によって提案が磨き上げられていくことはBIMによる設計の特徴の⼀つです。

間取りを提案する際も通常の図面に加えより空間のイメージを共有出来るように平⾯パースをご⽤意しています。
BIMベースで視覚的に合意を得てから設計図書の作成に⼊るので初期提案のイメージと完成した建物がかなり近いものになります。
したがって初期段階で視覚的に確認していくことによって設計変更等による時間、費⽤のロスを抑えることが可能です。
⽊造の保育園の計画、床仕上げや天井の仕上げ、開⼝部のイメージ等初期段階で合意を得た通りの内容で仕上げることが出来ました。
鉄⾻造の眼科クリニック、外壁のアスロックのパネルの貼り⽅、カーテンウォールの配置、キャノピー、外構等を初期段階でお客様と打ち合わせした通りに仕上げました。
⽊造住宅、擁壁を兼ねた鉄筋コンクリート造の駐⾞場、既製サッシを組み合わせたカーテンウォール等を初期段階でお客様と打ち合わせした通りに仕上げました。



店舗の配置を決める際に敷地周辺をモデリングして近隣からの⾒え⽅をシュミレーションして決める事が出来ます。
坂の下から登る⾞の視線のアングルや下り坂のアングルなど様々な⾓度からの⾒え⽅を検討して配置を決定します。


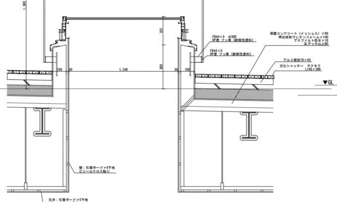
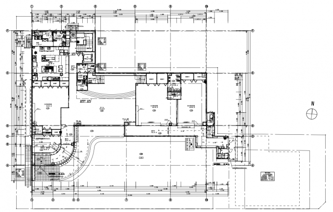
BIMのモデルは切断することによって2Dの設計図⾯にすることが可能な詳細レベルでモデリングされています、よってお客様と視覚的な打ち合わせをに使⽤したデータはシームレスに確認申請や⼯事⽤の図⾯と連動しますこれによってデザインと⼯事⽤図⾯の整合性を保ちます。
お客様と打ち合わしてデザインの確定したBIMデータからこのように⼯事や確認申請に使⽤する図⾯を切り出します、当然BIMと図⾯は連動していますので変更の際もシームレスに連動するが可能です。



BIMのモデルは詳細にモデリングが可能ですので様々なディテールの検討が可能です。建物の構造体や設備配管の⼲渉にも役⽴ちます。


⼯事を進めていく上での施⼯者との打ち合わせにもBIMのモデルを利⽤します。 お施主様との打ち合わせによって完成した設計内容を正確に施⼯者に伝えることはとても⼤切なことです、BIMモデルを利⽤すればイメージの伝達もスムーズになり、複雑な構造の建築も失敗の無いように建築することが可能です。
インテリアの選択にもBIMは⾮常に有効です、3Dの空間に壁材、床材、キッチンや照明などを配置して⾊合いや素材感を⾒⽐べることができるのでカタログとモニターを⾒ながらコーディネートすることが可能です。
⼯事途中での設計変更に対してもそれを⾏うことによりおこる変化を⽬で⾒て確認してすすめていくことが容易です。
建物の仕上げに使う材料を正確にBIMモデルに反映させることによって建築費の概算の段階でも建物のデザインを共有することが出来ます、デザインとコストをリンクすることが出来るのでデザインは気に⼊ったがコストオーバーにより⼤幅な変更をするようなことを予防します。

式場デザイン、実際に選定している仕上材をBIMにすべて反映させることによって初期段階から内観イメージをお客様と共有しています。
建築費の概算の段階で材質等を共有することによってお客様は建物クオリティとコストを把握することが出来ます。

敷地の詳細な位置、時間情報を設定することにより日当りのシュミレーションを⾏うことが可能です。
9:00、12:00、15:00の⽇照をシミュレートします。

9:00の日照

12:00の日照

15:00の日照

コンピューターによる⽇当りのシュミレーションの精度を確かめるために実験をおこないました。
以前設計させていただいた保育園の写真を撮り同じ⽇時でパースを作成しました、⾒⽐べるとシュミレーションと現実はほぼ⼀致しています。
周辺建物もなるべく正確にモデリングすれば⽇当りのシュミレーションはかなり精度の⾼いものになります。
BIMによるデータはリフォーム・リノベーションにもとても有効です。
BIMで既存の建物をモデリングすることによって正確に建物のビフォー・アフターを切り替えることができます、お客様は同じ視点で建物の変化を視覚的に確認することが可能です。


弊社は世界を代表するBIMソフトベンダーであるGRAPHISOFT社の認定を受けたARCHICADゴールドマスターであり、GRCの認定を受けています。※GRCとはGRAPHISOFT Registered Consultantsはグラフィソフトジャパン株式会社が公認するBIMに対する専⾨的なスキルでArchiCADの導⼊をサポートまたはコンサルティングするグラフィソフト認定スペシャリストです。
また弊社はBIMにおいて新聞、書籍、雑誌、WEBなどで様々な媒体で取り上げられています。⽇経アーキテクチャ誌において半年間BIMについての連載を掲載されました。2016年アーキフューチャーのパンフレットに弊社事例が掲載されました。
・2014建設ITガイド
・グラフィソフト事例集
・グラフィソフト事例集2
・これだけBIM
・建設通信新聞
・建築知識ビルダーズ
BIMについてはまだまだ書ききれていないところがありますが、1番⾔いたいところはお施主様と設計者、施⼯者をつなぐ⾮常に有効なコミュニケーションツールであること、建築に関わる全ての⼈のイメージを共通させ建物をよりよいものにできることが出来るツールであること、その後の維持管理や改修にまで利⽤できるとても便利なデータベースであるということです。
弊社の30年以上の建築のノウハウと新しいBIMという先進の建築設計技術でお施主様にとって最良の建築をすることをお約束致します。
こちらにお電話をおかけください。
03-5284-7106